Desktop – Leaderboard

Home » Cranbrook council endorses LCRB referrals

Posted: January 12, 2023

Cranbrook council endorses LCRB referrals

City of Cranbrook council Jan. 9 voted to support two applications from Kootenay Indoor Golf for a capacity increase and a change to operating hours, as referred to the city by the Liquor and Cannabis Regulation Branch (LCRB).

The LCRB requires council’s approval prior to processing the applications.

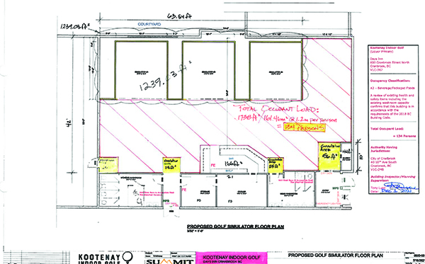
The establishment’s capacity will increase to 134 from 32 previously. There were no concerns noted by Planning, Building, Bylaw, and Fire & Emergency Services regarding noise or impact on the community with the proposed capacity increase. Cranbrook RCMP noted no concerns in regards to the application, a city Corporate Services report noted.

Operating hours of the establishment, located at 600 Cranbrook St. N., will also change. Prior to this application the operating hours were 9 a.m. to 10 p.m., Sunday to Thursday and from 9 a.m. to 11 p.m. on Friday and Saturday.

The proposed application will change the establishment’s operating hours from 9 a.m. to 2 a.m.

Lead image: Site plan of Kootenay Indoor Golf, part of council’s information package. City of Cranbrook

e-KNOW


Article Share
Author: